Создадим эскизный проект вашего ремонта

3 октября 2023
Создадим эскизный проект вашего ремонта

Планируйте свой будущий ремонт с помощью услуги «Эскизный проект». В фирменных магазинах KERAMA MARAZZI в Санкт-Петербурге менеджер поможет спроектировать спальню, гостиную, ванную комнату или кухню.


ПРЕИМУЩЕСТВА ЭСКИЗНОГО ПРОЕКТА

НАГЛЯДНО: ВЫ СРАЗУ УВИДИТЕ СВОЙ БУДУЩИЙ ИНТЕРЬЕР В ОБЪЁМЕ

✔ 3D-визуализация позволит получить объёмное изображение будущего интерьера и увидеть, как воплотятся задуманные решения.

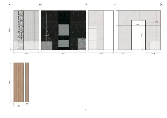
✔ На этапе проектирования можно включить нестандартные раскладки керамической плитки и керамогранита.

✔ Вместе подберём оптимальный вариант расстановки сантехники и мебели в ванной комнате, а также наилучшее сочетание материалов для других помещений, в том числе спальни, гостиной, прихожей.

ПРАКТИЧНО: ТЕПЕРЬ ВЫ ТОЧНО ЗНАЕТЕ, СКОЛЬКО МАТЕРИАЛОВ НУЖНО

✔ Ощутимая экономия при заказе: эскизный проект позволяет точно определить необходимое количество плитки и других отделочных материалов с учётом швов и подрезки.

✔ Вместе с эскизом вы получаете подробную смету на все позиции, использованные в проекте, а также развёртки стен и пола — по ним смогут сразу начать работу ваши плиточники и мастера-ремонтники.

ОПЕРАТИВНО: ЭСКИЗ ПОДГОТОВИМ В ВАШЕМ ПРИСУТСТВИИ

✔ После согласования материалов, используемых в эскизе, требуется от получаса для создания модели и примерно такое же время на разработку эскиза. Общее время зависит от сложности проекта и количества вариантов отделки.

✔ Нет времени ждать? Договоримся об отправке вариантов по электронной почте.

Вы получаете

Визуализация интерьера


Раскладка


Спецификация


Готовые эскизные проекты

ЭСКИЗНЫЙ ПРОЕКТ ВАННОЙ КОМНАТЫ «ПРО Матрикс»

ЭСКИЗНЫЙ ПРОЕКТ КВАРТИРЫ В СТИЛЕ ЛОФТ

ЭСКИЗНЫЙ ПРОЕКТ ВАННОЙ КОМНАТЫ «КОРРЕДО»

ЭСКИЗНЫЙ ПРОЕКТ КВАРТИРЫ В СТИЛЕ РОМАНТИЗМ

ЭСКИЗНЫЙ ПРОЕКТ КВАРТИРЫ В СТИЛЕ НАТЮР 


ЭСКИЗНЫЙ ПРОЕКТ ВАННОЙ КОМНАТЫ «ПРО Дабл»


ЭСКИЗНЫЙ ПРОЕКТ ВАННОЙ КОМНАТЫ «МИРАБО»


ЭСКИЗНЫЙ ПРОЕКТ ВАННОЙ КОМНАТЫ «БУОНАРРОТИ»


ЭСКИЗНЫЙ ПРОЕКТ ВАННОЙ КОМНАТЫ «ЭВОРА»

ЭСКИЗНЫЙ ПРОЕКТ КВАРТИРЫ В КЛАССИЧЕСКОМ СТИЛЕ

ЭСКИЗНЫЙ ПРОЕКТ ВАННОЙ КОМНАТЫ «БЕЛА-ВИСТА» 

ЭСКИЗНЫЙ ПРОЕКТ КВАРТИРЫ В СТИЛЕ ШАЛЕ 

как получить эскизный проект:

ШАГ 1
Заполните форму ниже.

ШАГ 2
После получения заявки с вами свяжется менеджер, который ответит на все вопросы и назначит удобное время для посещения фирменного магазина.

ШАГ 3
В согласованное время приходите в магазин для выбора материалов и составления эскизного проекта. Готовый проект передается в распечатанном виде после оплаты выбранных материалов.
заполните форму обратной связи, и мы перезвоним вам
Отправить
Услуга предоставляется в фирменных магазинах KERAMA MARAZZI в Санкт-Петербурге.
Не является публичной офертой.